дома фахверк

дома амбары

НАЗАД
Владивосток

8-800-707-18-66

Заказать обратный звонок
с 10.00 до 19.00 ч.

ПРОЕКТ TH-22 168 м2

1

ПРОЕКТ TH-22 168 м2

2

ПРОЕКТ TH-22 168 м2

3

ПРОЕКТ TH-22 168 м2

4

ПРОЕКТ TH-22 168 м2

5

ПРОЕКТ TH-22 168 м2

6

ПРОЕКТ TH-22 168 м2

7

Площадь

168 м2

Материал стен
панели GROGLEX
Комнат

3

Санузлов

3

Цена комплекта с завода

13 807 000 р.

Цена с монтажом

14 579 800 р.

Получить смету
Забронировать дом

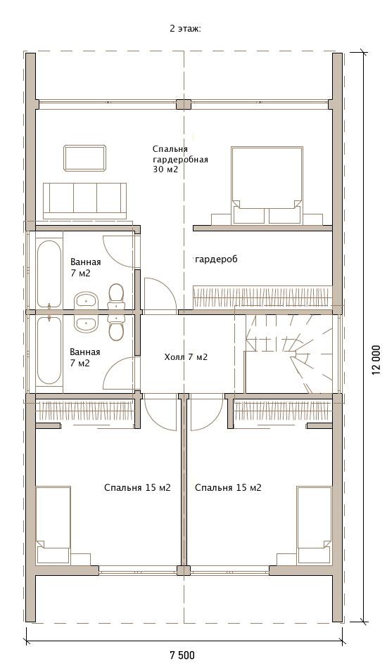
Проект TH-22 168 м2

Полноценный дом в современном стиле амбар для постоянного проживания. Визитная карточка этого дома – стеклянный витраж, сквозь который будут освещаться гостиная в первом этаже, которая соединена с кухней-столовой, и одна из спален во втором. Наличие 4-х спален позволит разместить большое количество гостей. Просторная терраса – 42 м2 – для проведения шумных летних вечеринок или уютных ужинов.

Планировка - 1 этаж

Планировка - 2 этаж

Хочу изменить проект

Это совсем просто! В нашей компании работает штат опытных архитекторов, которые на основании ваших идей создадутиндивидуальные планировки, внесут корректировки в фасад. Архитектор может встретиться с вами, как в одном из наших офисов, так и в любом другом удобном для вас месте, в том числе на участке.

Видео обзоры

ПРЕИМУЩЕСТВА ДОМОВ
СЕРИИ АМБАР

ОСОБЕННОСТИ

Простота форм – коробка в виде вытянутого прямоугольника, двускатная крыша, минималные свесы. Жесткий каркас из опорных клееных балок. Второй свет на всей протяженности или в одной из торцевых частей. Панорамное остекление, максимум свободного пространств.

КОНСТРУКТИВ

Особенность конструктивных элементов домов-амбаров – это каркас из клееных балок, из заполнение специальными панелями.

ЭНЕРГОЭФФЕКТИВНОСТЬ

Современные утеплители и специальные стеклопакеты делают дом действительно энергоэффективным. Несмотря на сравнительно небольшую толщину стен, фахверковые дома в разы теплее кирпичных. Кроме того, за счет уменьшения толщины стен полезная площадь дома увеличивается примерно на 10%.

ВЛАГОСТОЙКОСТЬ

Технологичный клееный конструкционный брус и утеплители являются максимально влагостойкими материалами. Под действием внешней среды они не будут деформироваться, а значит дом с течением времени сохранит точную геометрию формы. Продувания, промерзания и прочие негативные явления исключены.

ЭКОЛОГИЧНОСТЬ

При изготовлении клееных деревянных конструкций мы используем клеевые системы всемирно известного прозводителя AkzoNobel (Швеция). Клеевые составы абсолютно безопасны для здоровья, что подтверждают испытания независимых центров и соответствующие сертификаты. Утеплители PIR также не выделяют вредных веществ — сегодня это самый экологичный и безопасный теплоизоляционный материал.

ПОЖАРОУСТОЙЧИВОСТЬ

Несущие клееные деревянные конструкции гораздо безопаснее бетонных или металлических. Распространение огня сдерживается в течение 30 и более минут. Утеплители в панелях под действием огня лишь обугливаются — не плавятся, образуя горящие капли расплава, и не поддерживают распространение пламени.

МОНТАЖ

Монтаж домокомплекта относительно прост и не требует больших временных затрат, все работы занимают порядка 10-14 дней. Вы можете заказать сборку дома в нашей компании или осуществить монтаж своими силами. Приобретая домокомплект, вы получите необходимый комплект чертежей и инструкций.

СТОИМОСТЬ

Благодаря стандартизации деталей и массовости производства мы предлагаем действительно качественные современные дома по меньшей стоимости.

Уже сделали расчёт в другой компании?

Никогда не поздно найти более интересные условия и избежать уловок строителей!

Мы сделаем бесплатный аудит сметы и укажем на возможные «подводные камни»

Прикрепить файл
Отправить на расчёт

Посмотрите галерею выполненных проектов